KonzeptUmsetzungEmpfehlungWir waren dabei!Kontakt

Modellversuch CLIBS 
Umsetzung 
BS Technik 
             Zerspanungsmechaniker 
Projekt 4 

 

Projekt1 
Projekt 2 
Projekt 3 
Projekt 4 
Projekt 5 

 

             Zerspanungsmechaniker 
         Technische Zeichner 

 

[Modellversuch CLIBS][Umsetzung][BS Technik][ Zerspanungsmechaniker][Projekt 4]


Projekt 4

 Problemstellung:

Für einen reibungslosen Fertigungsablauf benötigt jeder Betrieb, der sich hoher Qualität verpflichtet fühlt gut ausgebildetes Fachpersonal, welches über komplexe Fähigkeiten und Fertigkeiten verfügt. Für den Zerspanungsmechaniker bedeutet dies, alle Fertigungsschritte von der Technischen Zeichnung bis zum fertigen Werkstück zu beherrschen. Von besonderer Bedeutung für die Anforderungen des Qualitätsmanagements sind dabei alle mess- und prüftechnischen Tätigkeiten.

Aufgabenstellung:

Zur Zusammenführung, Vertiefung und Erweiterung der erworbenen Kenntnisse der Projekte 1-3 bearbeiten Sie nachfolgend aufgeführte Schwerpunkte.

Arbeitsschwerpunkte:

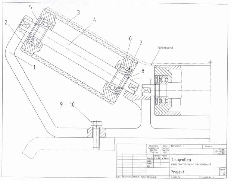
Analyse der in der Anlage aufgeführten Baugruppe „Tragrollen einer Rollbahn mit Förderband“ dazu folgende Schwerpunkte

-       Überprüfung der Zeichnungsunterlagen

-      Vervollständigung der Zeichnungsunterlagen (Stückliste)

-       Funktion der Bauteile

-       Beschreibung der konstruktiven Lösung, die eine Drehung der Achse verhindert

-      Entscheidung zur notwendigen Passungsauswahl und der damit verbundenen Rauheitsangaben für die Einzelteile 2, 3, 4 u. 5  ( mit Begründung )

-      Anfertigung der Werkstattzeichnungen der Einzelteile 2, 3, 4 und 5

( die Maße entnehmen Sie der Gesamtzeichnung )

  • Rauheitsprüfung von Oberflächen
    (Rauheitskenngrößen, Verfahren zur Rauheitsprüfung, Gewindeprüfung)
    Form- und Lagetoleranzen und ihre Prüfung
  • Numerisch gesteuerte Messmaschinen
  • Werkstoffprüfung zur Beurteilung von Werkstoffeigenschaften (Belastung und Beanspruchung von Bauteilen, Zugversuch, Härteprüfung) sowie zerstörungsfreie Werkstoffprüfung (Durchstrahlungsprüfung, Ultraschallprüfung, Oberflächenrissprüfung) inklusive Festigkeitsberechnungen
  • Weiterbearbeitung der NC- Programme der Projekte 1-3 (Datentransfer PC- Werkzeugmaschine, Einrichten der Maschinen CT 20 und DMU 50 T, Einfahren der NC- Programme der Projekte 1-3

 

 

 

 

 

Download Projekt 4   aniblue08_next.gif           PDF - Datei        

[Zurück][Nach oben][Weiter]

Copyright(c) 2002 CLIBS Alle Rechte vorbehalten.
UHunger@online.de